Floors At Murath 7 – Al Granada District
To send your inquiries
Units Table
Filter the results
Project Informations
Project Status: Available
Property Type: Floors
City: Granada, Northeast Riyadh
Price From: 1,300,000
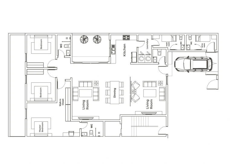
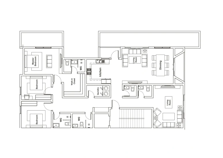
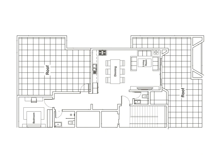
Rooms: 3 - 3
Area: 211 - 256 m²
Project Location
- 20 minutesKing Khalid International Airport
- 10 minutesPrincess Nourah bint Rahman University
- 5 minutesTrain station
- 5 minutesAatiaf Mall
Project Features
Air conditioners
Driver's room
Independent Meter
Independent tank
Italian Elevators
Maid's room
smart home
Surveillance cameras
Warranties
10Years
Construction Structure
1Year
Comprehensive warranty
2Years
Elevators
1Year
Paints
5Years
Interior doors
5Years
Electrical extensions
25Years
Plumbing extensions
25Years
Electric drummers
3Years
Lighting
5Years
Smart entry
5Years
Aluminum Windows
5Years



