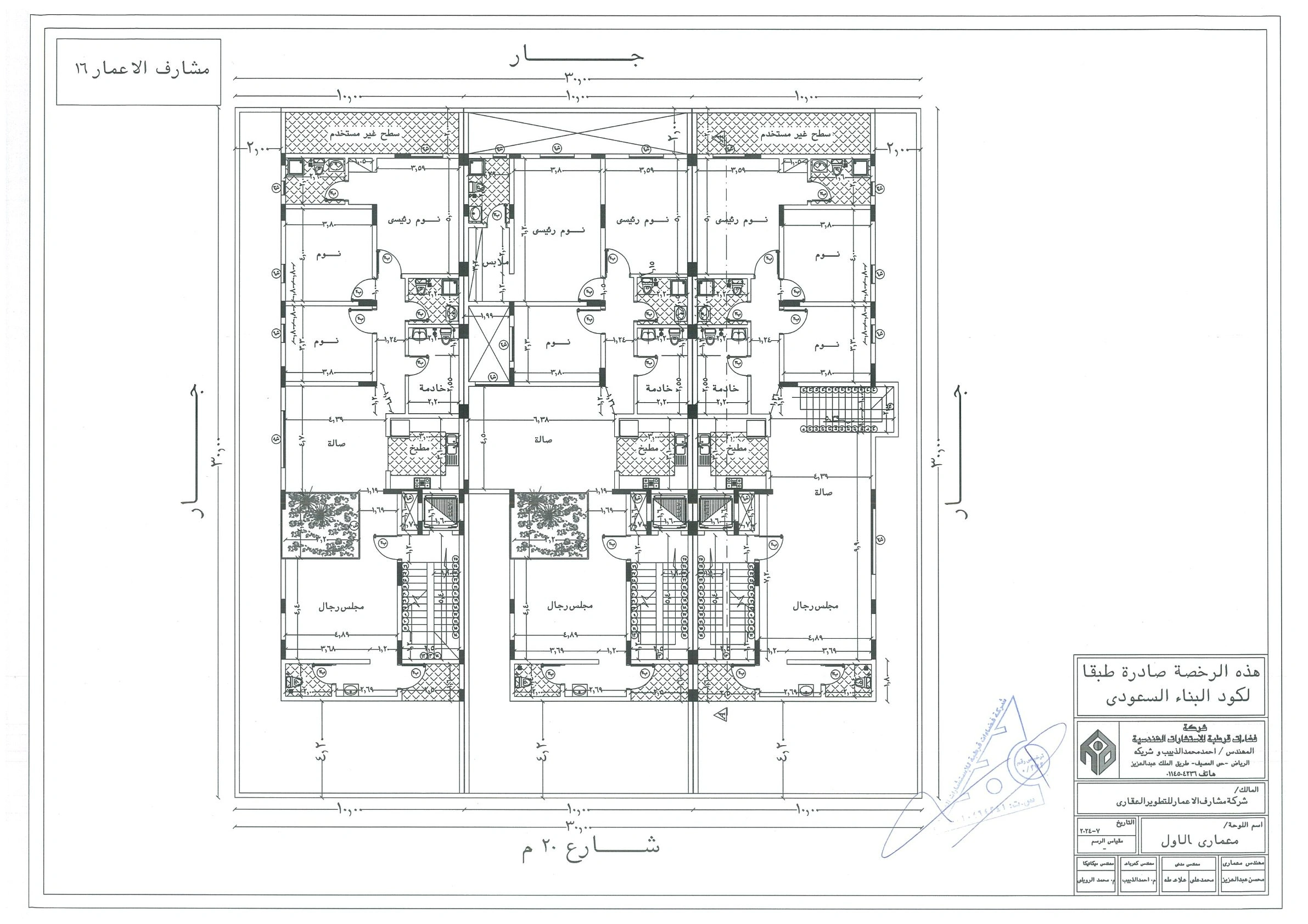
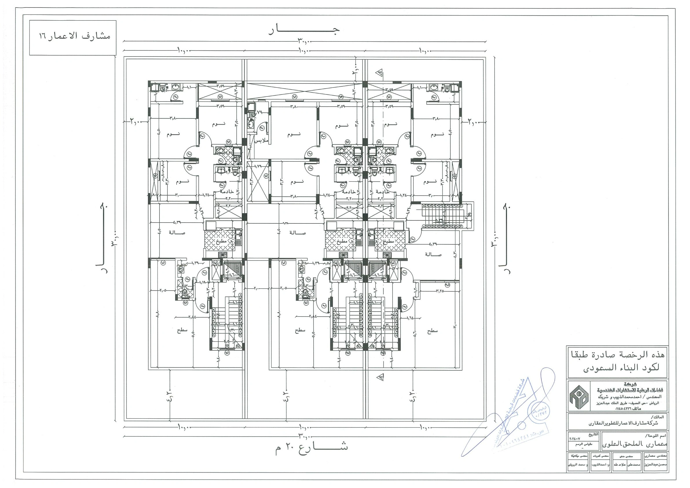
جدول الوحدات
#C1
محجوزة
محجوزة
3210 م²الدور الثاني
معلومات المشروع
حالة المشروع: متاح
أنواع الوحدات: أدوار
المدينة: النرجس, شمال الرياض
السعر من: 1,340,000
الغرف: 3 - 3
المساحة: 180 - 357 م²
بالقرب من
- 02 دقيقةطريق عثمان بن عفان
- 04 دقائقطريق الملك سلمان
- 13 دقيقةجامعة الأميرة نورة
- 14 دقيقةجامعة الإمام محمد بن سعود الإسلامية
- 15 دقيقةمطار الملك خالد الدولي
- 12 دقيقةجامعة اليمامة












